Page suivante
Page précédente
Domont (95330)

Maison 6 pièce(s) 4 chambre(s) 101 m²

1
256 m²
1
312 600 €
Réf DOM2/3

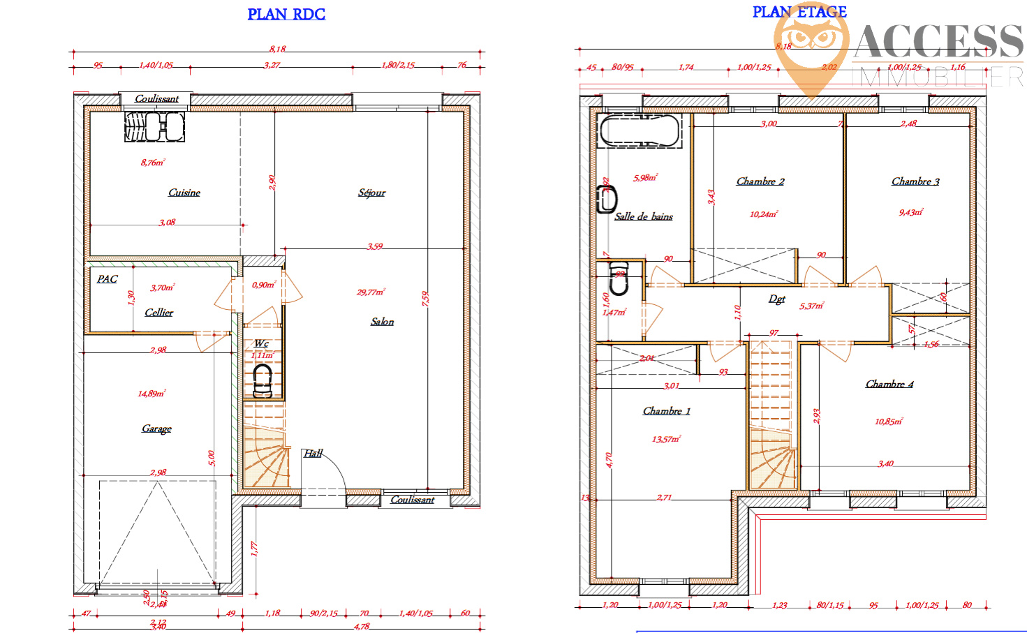
Venez découvrir ce programme neuf en limite de Montmorency, pavillon 5 pièces de 101 m2 comprenant au rdc : un séjour double, une cuisine, WC et cellier : "A modeler à votre souhait !", à l'étage : palier, 4 chambres, une salle de bains et WC séparés. Garage et un stationnement exterieur. Avec un jardin de 256 m2. La construction de belle qualité répond aux normes thermiques RT2012 (chauffage par pompe à chaleur), ce qui donne droit au prêt à taux zéro et à la loi Pinel. Venez choisir votre future maison ! - Contactez Alexandre QUERE au 06.01.15.33.37 / contact@access-immo95.fr

Bilan énergétique

Diagnostics énergetiques
A propos de ce bien Caractéristiques de ce bien
  • Surface 101 m²
  • terrain 256 m²
  • séjour 29,77 m²
  • 4 chambre(s)
  • 1 salle(s) de bain
  • construit en 2018
  • cuisine américaine
  • Chauffage individuel : convecteur (pompe à chaleur)
  • 1 garage(s)
  • 1 parking(s)
  • exposition Est-Ouest
  • 2 niveau(x)
  • piscinable

Composition

Composition de ce bien

Rez-de-chaussée

  • salon/sejour 29.77 m²
  • chambre 9.43 m²
  • palier avec placard 5.37 m²
  • chambre 13.57 m²
  • chambre 10.24 m²
  • chambre 10.85 m²
  • WC 1.47 m²
  • garage 14.89 m²
  • cellier 3.7 m²
  • WC 1.11 m²
  • degagement 0.9 m²
  • cuisine 8.76 m²
  • salle de bain 5.98 m²

Financier

Informations financières
Prix de vente 312 600 € Les honoraires d'agence seront intégralement à la charge du vendeur

Autour du bien

Découvrez le quartier

Simulation

Calcul des mensualités
* Champs obligatoires
ACCESS Immobilier Agence